2.活動内容

(2)活動内容

C旧北勢多郡役所(旧沼田警察署分署)現状実測調査

調査日時:平成22年12月5,6,7日 9:00〜16:30
延参加者:RAC5名・住民3名・工学院大学後藤研究室12名
解体作業:兵藤建設3名
補足調査:平成23年8月20、28日 13:00〜16:00
延参加者:RAC3名・住民2名
補足調査:平成23年11月22日 13:00〜16:00
延参加者:RAC1名・住民1名
監修調査:平成23年11月28日 13:00〜15:00
延参加者:監修者1名・RAC1名

 実測調査は、工学院大学学生を中心にRACが指導しながら協働して行った。解体は、1階と2階間仕切りの部分解体を行った。

 実測調査の結果、分署(糸之瀬役場)当初部分の損壊は比較的少なく、健全であり、復原は可能であると思われる。但し、後補の住宅部分は、室内外共かなりの損壊がが認められ、特に、当初部分の外側に増築した箇所の破損はひどく、改修できる状態ではない。復原に当たっては、内部の内装、周囲の増築部分はすべて取り払うことになる。

 当初部の柱は、開口部を除き、3尺(909mm)毎に建てられ、柱断面寸法は4〜4.5寸である。当初柱は1階で4本、2階で1本が抜かれているがその他の当初柱は残されている。柱の腐朽・虫害等も目視できる範囲では、顕著なものは見当たらない。土台は栗、基礎(地覆石)は安山岩の切石である。

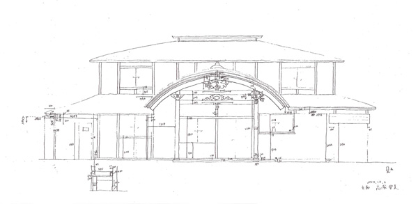
図−13 実測野帳−1※画像クリックで拡大
図−13 実測野帳−1 図−13 実測野帳−1
図−14 実測野帳−2※画像クリックで拡大
図−14 実測野帳−2
図−14 実測野帳−2